Search:
Design

Table of Contents



Title Page
Author's Note:
Introduction
Origins
Design
Construction
Table 1: Estimated Cost per Ton of Early Canadian Great Lakes Steamboats
Management
Operation
Competition and Profitability
Sale
Conclusions
Notes
Table of Illustrations
Index

In the writings on the Frontenac, none have gone beyond a speculative glance at the most familiar contemporary picture, that from Captain Van Cleve's "Reminiscences", reputedly drawn in 1827. It shows a long, low, three-masted, schooner-rigged vessel. Her single funnel belches smoke and hot ash into the sail tightly furled against the main mast. The only concession to steam seems to be the placement of the main mast well aft, while the guards around the paddlewheels are a distinct afterthought. The cabins on her deck are unobtrusive, leaving one with the impression of a naval vessel, her decks ready to be cleared for action. 18 It is a plausible enough conclusion, but it does not fit all the facts.

Two decisions from the inaugural meeting of the Frontenac's proprietors were critical to its design: it should run on the upper river and have a 40 horse power engine imported from England. Every engine brought into the Canadas at that time had been purchased from Boulton and Watt. Peter Smith, to whom had been delegated this responsibility, turned to the English branch of a well-established Montreal firm, Gerrard, Yeoward, Gillespie and Company. 19 Construction of the hull was underway in Upper Canada by the time instructions could have reached Gillespie, Gerrard & Co. in London, so it is clear that whatever decision was made regarding the interior dimensions amidships had been taken by early November.

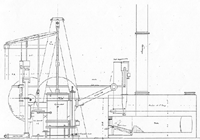
Engine drawings

The Boulton & Watt papers include a "Sketch of the Framing & Boilers for Boat Engine", noted Gillespie Gerrard & Co., 19 January 1816. On the same sketch the name W. Hodgson & Co., Jan 21st 1815, also appears. 20 The finished drawing for the Frontenac, made later that spring, match to the smallest degree those drawn for Hodgson.21 And for whom was Hodgson buying an engine? One of his drawings is clearly annotated the Car of Commerce, which was launched at Montreal on 7 October 1815.22 A table on another of Hodgson's drawings notes the dimensions of the hull: Keel 152 feet, Deck 170 feet, Beam 30 feet, Depth 12 feet to ceiling. The calculated draft was five feet unloaded and six when loaded.23 The Car's registered tonnage was 670 20/94.24 By comparison the Frontenac was 150 feet keel, 170 deck, 30 beam, and the depth of the hold was 11 1/2 feet. Running as she did above the Lachine rapids she was never registered, but she was expected to be about 700 tons.25 In effect, the Frontenac's proprietors built a second Car of Commerce and ordered the engine to fit.

 


Previous    Next

Return to Home Port